141310, Московская область, г. Сергиев Посад,
ул. Осипенко д. 6 оф. 526
Пн-Вс 10:00–20:00

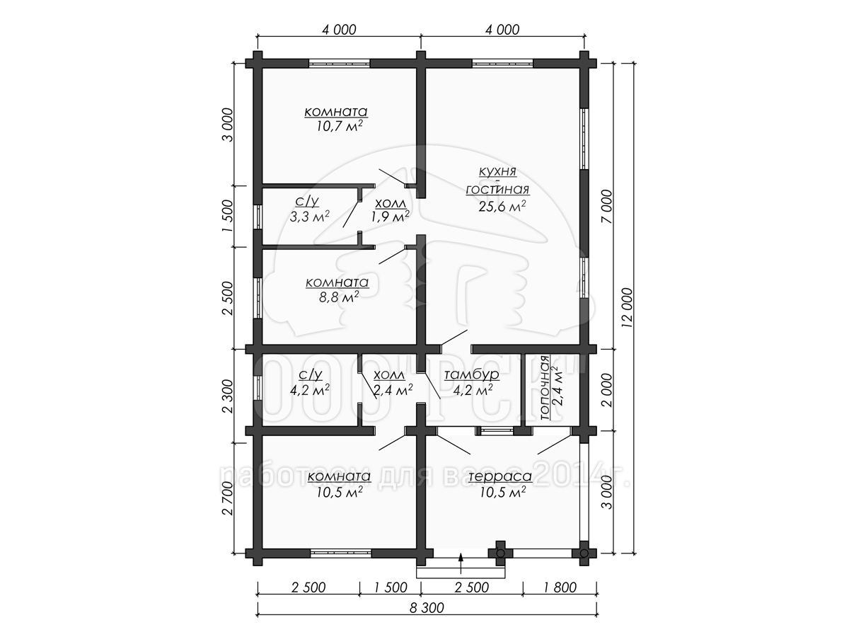
Проект каркасного дома ДО-16

84.5 кв.м
12x8,3 м
1 этаж
2 санузла
3 спальни
Стоимость проекта уточняйте по телефону
<
>

Планировка каркасного дома ДО-16

ООО "РСК"
Данная комплектация представлена для строительства дома по каркасной технологии. Комплектация может быть дополнена монтажом электропроводки скрытого и открытого типов, рэтропроводки, монтажом инженерных коммуникаций открытого и частично или полностью скрытого типов. Любая комплектация обсуждается и может быть изменена по желанию заказчика

Что входит в стандартную комплектацию?

По желанию заказчика мы можем внести коррективы в любой из пунктов комплектации
  • Фундамент
    Винтовые сваи на глубину промерзания,
    0,5м выше уровня земли.
  • Стены
    Каркас из обрезного пиломатериала толщиной 150мм. Утеплитель минеральная вата 150мм.
  • Отделка
    Пароизоляция внутри, гидроизоляционная мембрана снаружи, обрешётка, вагонка штиль 15х120мм (стены и потолки).
  • Перекрытия
    Лаги из обрезной доски 50х200 с шагом 0,6м. Утеплитель минеральная вата (пол 150 мм, межэтажные перекрытия 50 мм). Гидроизоляция 2 слоя. Половая шпунтованная доска толщиной 36мм.
  • Крыша
    Стропильная система из обрезной доски 50х200, пароизоляция, утеплитель минеральная вата 150 мм, гидроизоляционная мембрана, обрешётка и контробрешётка из обрезной доски 25х100, покрытие профнастил.

Как мы работаем

Этапы взаимодействия с нашими клиентами
1
Заявка или звонок
Свяжитесь с нами любым удобным способом: оставьте заявку, позвоните или напишите нам в мессенджер
2
Консультация
Наш специалист сориентирует вас по комплектациям и срокам возведения дома или бани
3
Выбор проекта
Выберите подходящий проект и технологию строительства
4
Обсуждение проекта
Обсуждаем дополнительные работы по коммуникациям
5
Осмотр участка
Выполняем геодезические исследования для определения типа фундамента
6
Заключение договора
Подписываем договор и приступаем к работе, согласно утвержденному проекту
Мы готовы ответить на Ваши вопросы
Заинтересованы данным проектом? Можете оставить Ваш телефон, и мы перезвоним